PROMPT:
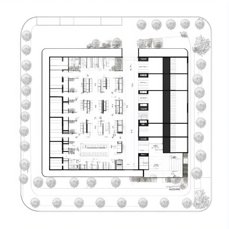
Architectural floor plan of a modern one-story commercial mall, 50x50 meters, symmetrical layout. The design includes multiple storefronts along one side, each with individual entrances and black awnings, as seen in the reference image. The plan should clearly outline the division of stores, hallways, main entrance, and possible common areas. Each store space is well-defined with accurate proportions, including dimensions and labels. The exterior structure is modern, with clean lines and a minimalist aesthetic. The background should be a clean white blueprint with black outlines, highly detailed, top-down view, technical drawing, ultra-clear, high resolution --v 6.1
Ý Nghĩa:
Thiết kế bao gồm nhiều cửa hàng bên một mặt, mỗi cửa hàng có lối vào riêng và mái hiên đen, như trong hình tham khảo. Kế hoạch cần chỉ rõ sự phân chia các cửa hàng, hành lang, lối vào chính và các khu vực chung có thể có. Mỗi không gian cửa hàng được xác định rõ ràng với tỷ lệ chính xác, bao gồm kích thước và nhãn. Cấu trúc bên ngoài hiện đại, với các đường nét sạch sẽ và thẩm mỹ tối giản. Nền là bản vẽ trắng sạch với các đường viền đen, chi tiết cao, nhìn từ trên xuống, bản vẽ kỹ thuật, siêu rõ nét, độ phân giải cao.